
Фильтр ФГГ-800
цена от
1 754 300 руб.
- Исполнение – горизонтальное
- Номинальный диаметр DN – 800 мм
- Номинальное давление PN – до 10,0 МПа
- Тонкость фильтрации – 4, 8, 12, 16 или 25 мм
- Максимальная производительность – 3000 м³/ч
- Материал корпуса – 09Г2С / 12Х18Н10Т / другая сталь
- Блочное исполнение – опционально
- Теплоизоляция – опционально
- Комплектация КИП, ЗРА – опционально
- Резервные фильтрующие элементы – опционально
Фильтр нефтяной ФГГ-800 (DN 800, 3000 м³/ч) — оборудование для магистральных трубопроводов и нефтеперерабатывающих заводов с экстремальными нагрузками. Внутренний диаметр корпуса 1300 мм и длина обеспечивают минимальные гидравлические потери при очистке высоковязких нефтепродуктов.
Примеры применения фильтров для нефти ФГГ-800
- Магистрали Арктического региона: Работа при температурах до -40°C с теплоизолированным корпусом.
- НПЗ с полным циклом: Фильтрация тяжелых фракций перед коксованием.
- Хранилища стратегического резерва: Защита резервуаров от заиливания.
Особенности фильтров грязеуловителей ФГГ-800
- Двойные фильтрующие кассеты: Повышение эффективности очистки до 99%.
- Мониторинг параметров: Датчики давления и температуры (опционально).
- Корпус из сертифицированной углеродистой или нержавеющей стали.
- Антикоррозийное покрытие всех поверхностей корпуса.
Технические параметры фильтра для нефти ФГГ-800
| Обозначение | Фильтр ФГГ-800 |
| Производительность, м³/ч | 3000 |
| Условное давление, Pу, МПа | 1,6; 2,5; 4,0; 6,3; 8,0 или 10,0 |
| Температура нефти, ℃ | От -15 до +80 |
| Температура нефтепродуктов, ℃ | От -20 до +80 |
| Степень фильтрации, мм | 4, 8, 12, 16 или 25 |
| DN, мм | 800 |
| Dp, мм (внутренний диаметр корпуса) | 1300 |
| L, мм (расстояние от фланца корпуса до кромки осевого патрубка) | 5300 |
| L1, мм (расстояние от оси бокового патрубка) | 1900 |
| H, мм (расстояние от оси ФГГ до опоры) | 1400 |
| L2, мм (расстояние между опорами) | 2800 |
| L3, мм (расстояние до опоры) | 1760 |
| Обозначение | Блочный фильтр ФГГ-800 |
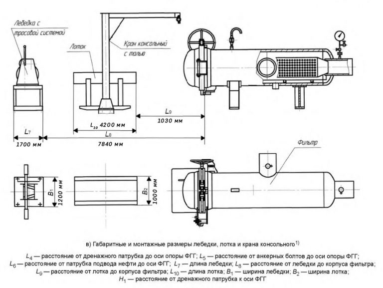
| L7, мм (длина лебедки) | 1700 |
| L8, мм (расстояние от лебедки до корпуса фильтра) | 7840 |
| L9, мм (расстояние от лотка до корпуса фильтра) | 1030 |
| L10, мм (длина лотка) | 4200 |
| В2, мм (ширина лотка) | 1000 |
| В1, мм (ширина лебедки) | 1200 |
| L5, мм (расстояние от анкерных болтов до оси опоры ФГГ) | 80 |
| L6, мм (расстояние от патрубка подвода нефти до оси ФГГ) | 1150 |
| L4, мм (расстояние от дренажного патрубка к оси опоры) | 1400 |
| Н1, мм (расстояние от дренажного патрубка до оси ФГГ) | 800 |
| Радиус вылета быстроразъемного концевого затвора, мм | 2100 |
| Количество штурвалов быстроразъемного концевого затвора, шт | 2 |
Чертеж фильтра ФГГ-800
Чертеж блочного фильтра ФГГ-800
Расшифровка условного обозначения
Например, фильтр грязеуловитель горизонтальный ФГГ номинальным диаметром DN 800 на номинальное давление PN 1,6 МПа, блочного исполнения, с осевым отводом нефти или нефтепродуктов, с правым расположением патрубка подвода нефти или нефтепродуктов, в сейсмостойком исполнении С по MSK — 64 [10], без теплоизоляции, вид климатического исполнения УХЛ1 по ГОСТ 15150 будет обозначаться следующим образом: ФГГ-800-1,6-Б-0-П-С-УХЛ1.
Преимущества ООО "УЗСК"
- Производство корпусов с испытанием на герметичность под давлением.
- Разработка индивидуальных схем обвязки для интеграции в существующие трубопроводы.
- Доставка в Норильск и другие уголки РФ, СНГ и ЕАЭС.
Заполните форму заказа






